| Powierzchnia: | 86.55 m2 | Cena: | 1 990 000 PLN |
| Liczba pokoi: | 3 | Cena za metr: | 22 992 PLN |
| Piętro: | 2 | Opłaty: | 0 PLN |
| Stan techniczny: | Wysoki standard | Garaż: | 1 miejsce w hali garażowej |
| Rok budowy: | 2018 | Parking: | |
| Balkon/taras/loggia: | Balkon | Forma własności: | Własność |
| Ogród: | --- | Winda: | Tak |
| Piwnica: | Tak | Ogrzewanie: | Kotłownia lokalna |
Na sprzedaż przestronny i bardzo funkcjonalny apartament o powierzchni 86,5 m2, położony w jednej z najbardziej prestiżowych i cenionych lokalizacji Gdyni — Orłowie Dolnym. Nieruchomość znajduje się w kameralnym budynku z lat 2018–2019, w którym mieści się zaledwie pięć mieszkań, co zapewnia ciszę, prywatność i komfort codziennego życia.
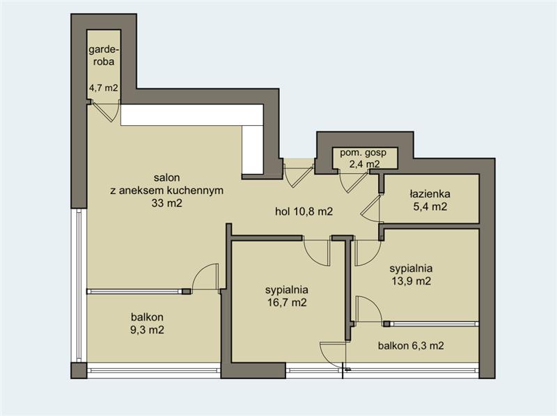
Mieszkanie charakteryzuje się przemyślanym układem pomieszczeń, dużą ilością światła dziennego oraz wysokim standardem wykończenia.
Rozkład i standard:
- Przestronny salon z aneksem kuchennym o powierzchni 33 m2, w pełni wyposażony, z wyjściem na duży balkon od strony zachodniej (pow.: 9,30 m2);
- Dwie sypialnie o powierzchni 16,70 m2 oraz 13,90 m2, obie z wyjściem na drugi balkon o pow.: 6,30 m2;
- Oddzielne pomieszczenie pełniące funkcję spiżarki lub garderoby;
- Łazienka z wanną o pow.: 5,4 m2, wygodna i elegancko wykończona, w której mieści się pralka i suszarka;
- dodatkowe pomieszczenie (garderoba) o pow.: 2,4 m2;
- Na podłogach podłoga z dębowego drewna, nadająca wnętrzu ponadczasowy charakter;
- duże panoramiczne okna zapewniające doskonałe naświetlenie apartamentu, okna wyposażone w automatyczne żaluzje.
Dodatkowe informacje i atuty:
- Dwa balkony, zapewniające komfortową przestrzeń do wypoczynku;
- Ogrzewanie centralne z lokalnej kotłowni gazowej;
- Na dachu budynku zamontowane panele fotowoltaiczne, dzięki którym koszty energii elektrycznej w mieszkaniu są praktycznie zerowe;
- Miejsce postojowe w hali garażowej;
- Komórka lokatorska o powierzchni 4,32 m2;
- Kameralny, nowoczesny budynek i spokojne sąsiedztwo;
- mieszkanie wyposażone w wideodomofon i klimatyzację;
- kilka kroków od lasu;
- blisko morza i terenów rekreacyjnych.
To doskonała propozycja dla osób poszukujących komfortowego apartamentu w wyjątkowej lokalizacji — blisko morza, terenów zielonych oraz pełnej infrastruktury miejskiej, a jednocześnie z niskimi kosztami eksploatacyjnymi. Opłaty w sezonie grzewczym wynoszą ok. 1200 zł miesięcznie.
Wydanie do uzgodnienia. Oferowana cena obejmuje miejsce postojowe w hali garażowej oraz komórkę lokatorską.
Zapraszamy na prezentację
Opiekun oferty:
Danka Hanuszewska
Telefon: 503 140 480
