DODATKOWE INFORMACJE
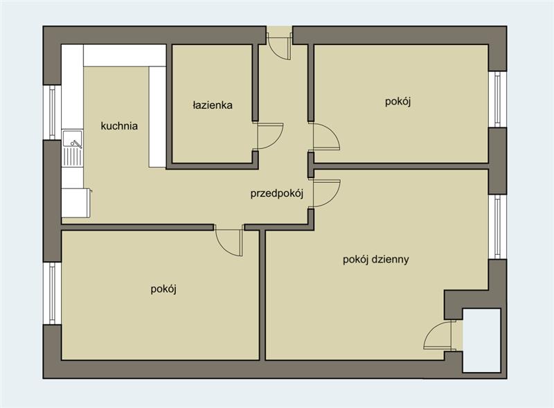
Polecamy do wynajęcia ustawne, zadbane 3-pokojowe mieszkanie, położone na parterze w budynku 4 piętrowym. W doskonałej lokalizacji - Gdyni Redłowie, w pobliżu terenów spacerowych, lasu i morza.
Mieszkanie składa się z pokoju dziennego z aneksem jadalnym z wyjściem na niewielki balkon, dwóch sypialni, osobnej kuchni, łazienki oraz przedpokoju.
Pokój dzienny oraz jedna sypialnia mają ekspozycję zachodnią, salon wyposażony jest w sofę z funkcją spania, fotel, stolik kawowy. Z okien widok na drzewa i zieleń. Sypialnie są nieumeblowane. W salonie mieści się skórzana sofa oraz fotel a także szafa typu komandor z rozsuwanymi drzwiami i stolik kawowy.
Kuchnia całkowicie urządzona i wyposażona w nową zabudową meblową oraz sprzęt AGD: zmywarkę, okap, lodówkę, piekarnik, płytę gazową. Okna od kuchni oraz jednej sypialni wychodzą na stronę wschodnią.
Łazienka jest wykończona w białych kafelkach, wyposażona w wannę ze szklanym panelem prysznicowym oraz pralkę. W łazience mieści się toaleta, szafka z umywalką oraz podświetlane lustro. Ciepła woda jest ogrzewana za pomocą nowego pieca gazowego.
W przedpokoju znajduje się szafka na buty oraz wieszaki. Wnętrze wykończone z wysokiej jakości materiałów. Mieszkanie jest świeżo odmalowane, wyposażone w nowe drzwi wewnętrzne oraz nowe drzwi wejściowe - antywłamaniowe, ściany we wszystkich pomieszczeniach są białe, wszystkie urządzenia i sprzęty są nowe - na gwarancji. Na podłodze w pokojach mieszczą się panele, w przedpokoju, kuchni oraz łazience płyty gresowe. Całość dopełniają gustowne lampy. Okna w całym mieszkaniu są nowe - PCV, wyposażone w rolety wewnętrzne typu plisa, firanki oraz zewnętrzne kraty wykonane z metaloplastyki.
Mieszkanie posiada bardzo funkcjonalny rozkład pomieszczeń. Ogrzewanie centralne - z sieci miejskiej. Budynek w dobrym stanie technicznym, ocieplony, klatka schodowa zadbana. Wokół budynku jest ładnie zagospodarowany teren, dużo zieleni, miejsca postojowe są ogólnodostępne i mieszczą się przed budynkiem.
Do mieszkanie przynależy piwnica. Opłaty w sezonie poza grzewczym miesięcznie wynoszą ok. 650 zł. (Opłaty zawierają m.in.: zaliczkę na wodę, ogrzewanie, wywóz śmieci, opłaty administracyjne). Dodatkowo opłata za gaz i prąd wg. stanu zużycia.
Kaucja w wysokości 4000 złotych. Wymagany najem okazjonalny.
Mieszkanie jest ciepłe, słoneczne. Atutem nieruchomości jest jej lokalizacja: w pobliżu lasu, morza, terenów spacerowych oraz komunikacji miejskiej (nieopodal budynku znajdują się przystanki autobusowe, liczne sklepy i punkty usługowe, apteka, kościół, szkoła).
Mieszkanie jest dostępne od zaraz POLECAMY
