Oferta

Lokal biurowy Wynajem Gdynia Orłowo Miernicza

DODATKOWE INFORMACJE


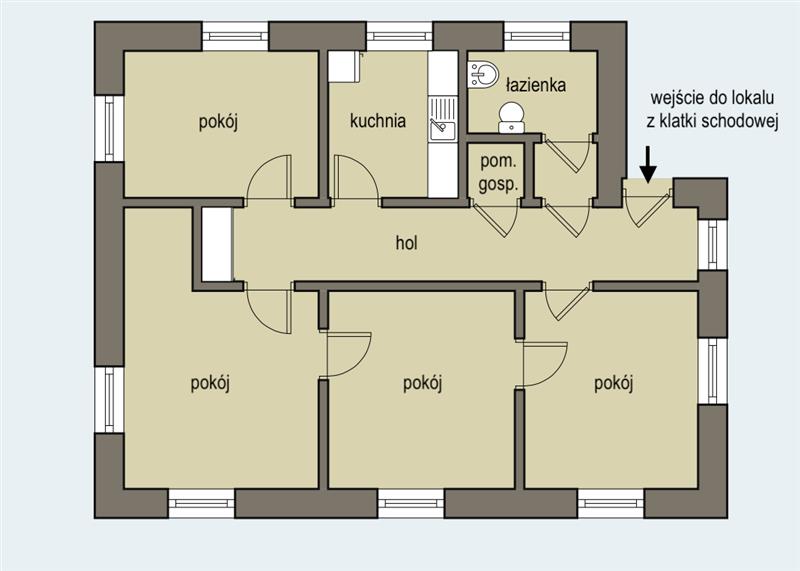
Oferujemy do wynajęcia przestronny lokal biurowy położony w prestiżowej dzielnicy Gdyni – Orłowie, w otoczeniu zabudowy willowej. Lokal znajduje się na pierwszym piętrze trzykondygnacyjnego budynku jednorodzinnego, z niezależnym wejściem z klatki schodowej, co zapewnia pełną swobodę dla najemcy oraz jego Klientów.

Powierzchnia lokalu obejmuje cztery ustawne pokoje biurowe, każdy z osobnym wejściem z korytarza oraz połączone wewnętrznymi drzwiami – umożliwiając różne układy i funkcjonalną aranżację przestrzeni. Dodatkowo do dyspozycji jest pokój socjalny (kuchnia) wyposażona w lodówkę oraz nowe meble, łazienka z toaletą i oknem oraz niewielki kantorek/pomieszczenie gospodarcze.

Ogrzewanie i koszty eksploatacyjne:

  • Ogrzewanie gazowe – W sezonie zimowym opłaty za ogrzewanie wynoszą średnio 700–850,- zł miesięcznie
  • Prąd płatny według faktycznego zużycia
  • Woda zimna i wywóz nieczystości wliczone w czynsz najmu

Lokal położony jest w doskonałej lokalizacji – niedaleko stacji SKM Gdynia Orłowo, co pozwala na wygodną komunikację zarówno transportem publicznym, jak i samochodem. Przed budynkiem dostępne są miejsca parkingowe, bez strefy płatnego parkowania.

Finanse i warunki najmu:

  • Czynsz najmu: 3 500 zł brutto miesięcznie
  • Kaucja: 3 500 zł brutto (równowartość miesięcznego czynszu)
  • Lokal dostępny od zaraz.

Oferta idealna na siedzibę firmy, spokojną działalność usługową, biuro księgowe, projektowe, kancelarię czy inne ciche usługi.


Opiekun oferty

Danka Hanuszewska
503 140 480
danka.hanuszewska@forumgdynia.pl






Lokal biurowy Wynajem Gdynia Orłowo Miernicza

Oferujemy do wynajęcia przestronny lokal biurowy położony w prestiżowej dzielnicy Gdyni – Orłowie, w otoczeniu zabudowy willowej. Lokal znajduje się na pierwszym piętrze trzykondygnacyjnego budynku jednorodzinnego, z niezależnym wejściem z klatki schodowej, co zapewnia pełną swobodę dla najemcy oraz jego Klientów.

Powierzchnia lokalu obejmuje cztery ustawne pokoje biurowe, każdy z osobnym wejściem z korytarza oraz połączone wewnętrznymi drzwiami – umożliwiając różne układy i funkcjonalną aranżację przestrzeni. Dodatkowo do dyspozycji jest pokój socjalny (kuchnia) wyposażona w lodówkę oraz nowe meble, łazienka z toaletą i oknem oraz niewielki kantorek/pomieszczenie gospodarcze.

Ogrzewanie i koszty eksploatacyjne:

Lokal położony jest w doskonałej lokalizacji – niedaleko stacji SKM Gdynia Orłowo, co pozwala na wygodną komunikację zarówno transportem publicznym, jak i samochodem. Przed budynkiem dostępne są miejsca parkingowe, bez strefy płatnego parkowania.

Finanse i warunki najmu:

Oferta idealna na siedzibę firmy, spokojną działalność usługową, biuro księgowe, projektowe, kancelarię czy inne ciche usługi.




Wydrukowane informacje nie są ofertą w rozumieniu przepisów prawa. Mają one jedynie charakter informacyjny.